Skip to main content

Prestations & tarifs pour un particulier

Vous êtes un professionnel ? C'est par ici

Dépôt de dossiers administratifs en mairie

Autorisation de travaux & Déclaration préalable

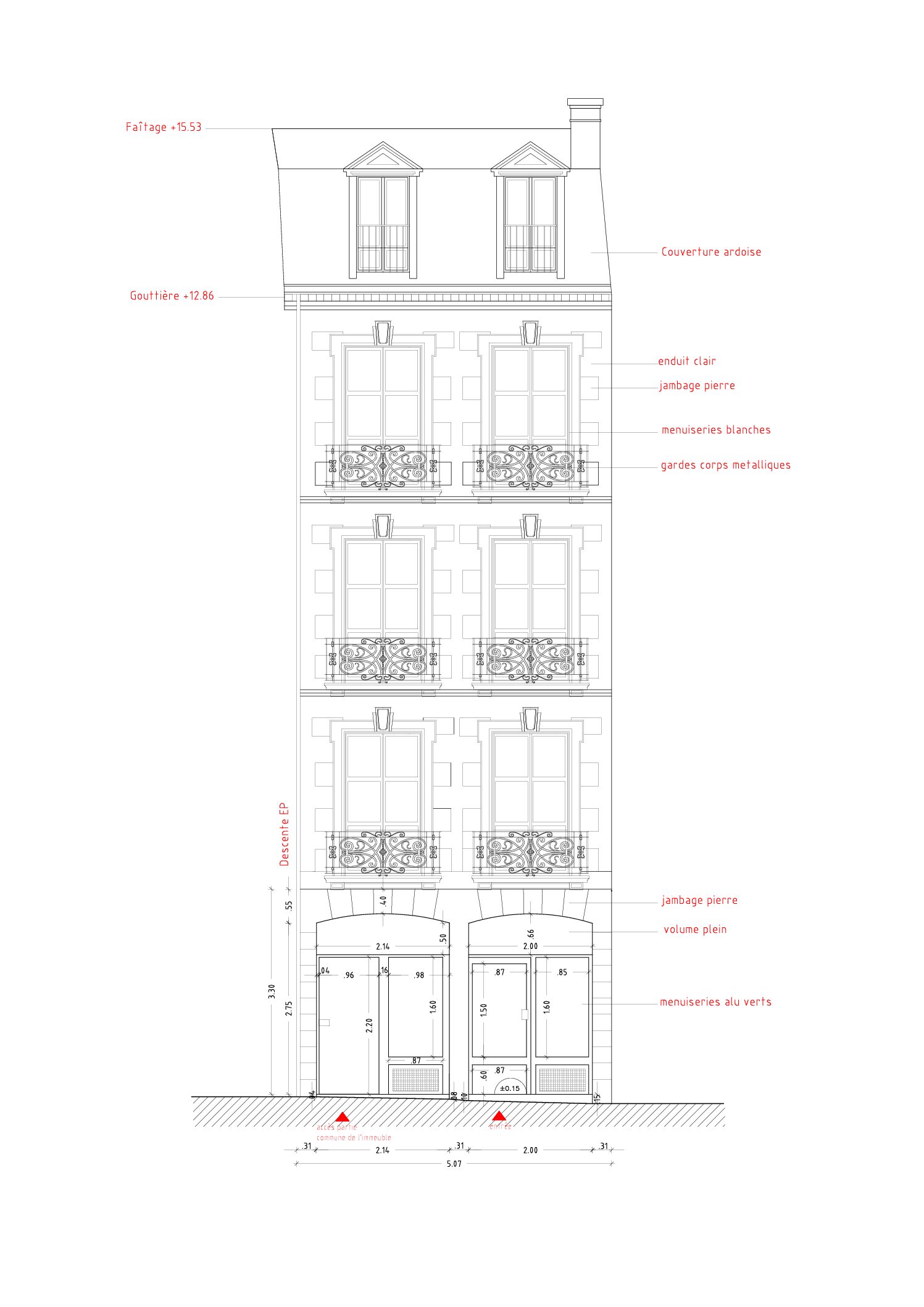
Vous souhaitez réaliser des modifications extérieures sur votre bien (ravalement de façade, changement de fenêtres, création d’ouverture, aménagement extérieur, etc.) ? Ces travaux sont souvent soumis à une autorisation administrative préalable.

  • Je vous accompagne dans toutes les démarches nécessaires au dépôt de votre dossier en mairie, afin de garantir sa conformité et d’optimiser les délais d’instruction.
  • Nos prestations comprennent :

    • Analyse de votre projet et identification des autorisations requises
    • Constitution complète du dossier administratif
    • Réalisation des pièces graphiques (plans, façades, insertion visuelle, etc.)
    • Rédaction des formulaires CERFA et documents obligatoires
    • Dépôt du dossier en mairie et suivi de l’instruction

    Types de dossiers pris en charge :

    • Déclaration préalable
    • Demande d’autorisation de travaux
    • Régularisation de travaux existants

Book Déco

À partir de vos plans ou de prises de mesures,  je réfléchis à la meilleure façon d’aménager votre pièce, par rapport à sa forme mais aussi par rapport à vos habitudes et vos envies, en respectant les circulations. J’élabore votre projet en 3 dimensions et vous remets un dossier complet pour réaliser votre projet.

  • Vous maîtrisez votre budget, et vous pouvez acheter vos meubles en un tour de main.
  • 1 planche tendance par pièce
  • 1 à 2 visuel(s) par pièce
  • 1 plan 3D afin que vous puissiez avoir une vision globale de votre projet
  • Une liste shopping, avec la sélection du mobilier, des éclairages et de la décoration.

Pour les projets de décoration comptez une base forfaitaire de 350 euros et un budget de 35 à 50 euros du m2, selon la superficie. (prix dégressifs, hors travaux et achat mobilier et décoration)

Prestation meublée

Vous souhaitez meubler un appartement en vue de le louer, nous vous aidons à concrétiser votre projet en prenant en charge l’ameublement, la décoration mais également les travaux de votre bien immobilier.

  • Après la conception de votre projet, un dossier vous sera remis comprenant les factures, les photos pour agence, la liste complète du mobilier.
  • Je peux également vous accompagner dans la réalisation de vos travaux avec des entreprises partenaires compétentes.
  • Tarif sur devis

Nos tarifs incluent :
L'achat du mobilier et leur mise en place, la livraison de ces derniers et nos honoraires.
Hors mobiliers cuisine/salle de bain ainsi que les travaux de rénovation.

Étude complète

Vous souhaitez un accompagnement dans votre projet de rénovation, vous avez besoin d’être guidé dans les choix des matériaux (sols, peintures etc..) et de la décoration ?

  • Après la conception de votre projet, un book déco vous sera remis.
  • Je peux également vous accompagner dans la réalisation de vos travaux avec des entreprises partenaires compétentes.
  • 1 planche tendance par pièce et planche matériaux
  •  1 à 2 visuel(s) de la pièce
  •  1 vue d’ensemble de l’aménagement en 3D
  •  Sélection des meubles, objets déco, matériaux et remise d’une liste shopping
  • Suivi de travaux pour la mise en œuvre de produits exclusivement décoratifs, d’agencements mobiliers non intimement liés au bâti, de l’installation du mobiliers, des luminaires et des accessoires.

Pour les projets de rénovation complet comptez une base forfaitaire de 500 euros un budget de 50 à 75 euros du m2, selon la superficie. (prix dégressifs, hors travaux et achat mobilier et décoration)